Popis nemovitosti
K pronájmu nabízíme velké obchodní prostory v přízemí budovy v Přípotoční ulici ve Vršovicích.
Budova je součástí velkého komplexu složeného z nájemního bytového domu, kanceláří, prodejen a servisů automobilů.
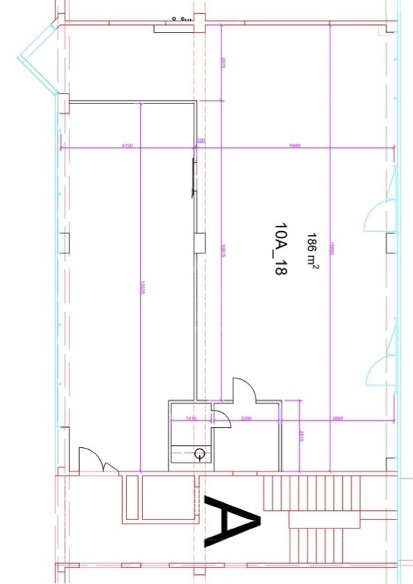
Prostor má 185m², výlohy ze dvou stran (do ulice a do zásobovací uličky zezadu domu), dále má šatnu, toaletu a kuchyňku.
Vhodné pro prodejny, pojišťovny, automobilové showroomy a další.
Cena: 55.000,- + poplatky za služby a energie cca 5.500,- bez DPH.
Budova je součástí velkého komplexu složeného z nájemního bytového domu, kanceláří, prodejen a servisů automobilů.
Prostor má 185m², výlohy ze dvou stran (do ulice a do zásobovací uličky zezadu domu), dále má šatnu, toaletu a kuchyňku.
Vhodné pro prodejny, pojišťovny, automobilové showroomy a další.
Cena: 55.000,- + poplatky za služby a energie cca 5.500,- bez DPH.
Vlastnosti nemovitosti
-
Typ nabídky
Pronájem
-
Typ nemovitosti
Komerční
-
Velikost bytu
Obchodní prostory
-
Typ budovy
Panelová
-
Užitná plocha
185 m²
-
Měsíční nájemné
55 000 CZK
Naplánovat termín prohlídky
Zvolte si čas
Přehledová tabulka
-
Referenční číslo
01921
-
Velikost bytu
Obchodní prostory
-
Užitná plocha
185 m²
-
Výtah
Ne
-
PENB
G - Mimořádně nehospodárná
Poloha na mapě





