Описание недвижимости
В рамках жилого проекта в историческом доме 1912 года мы предлагаем на продажу просторную квартиру 1+1 площадью 42 м², расположенную на 1-м этаже полностью отреставрированного здания. Квартира спроектирована с учетом требований современной городской жизни, сохраняя при этом уникальный исторический характер всего здания.
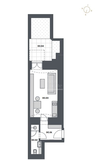
Планировка квартиры включает в себя просторную гостиную с кухонным уголком и обеденной зоной, ванную комнату и туалет. Перед квартирой разбит палисадник, в котором приятно отдыхать. В квартире есть подвальное помещение и возможность выбрать более совершенное оборудование, такое как кухня на заказ или встроенные элементы хранения.
Резиденция расположена в самом сердце пражского района Винограды, всего в нескольких шагах от площади Иржиго з Подебрад, одного из самых востребованных мест в Праге. Окрестности района славятся своей атмосферой - здесь вы найдете известные кафе, рестораны, фермерские рынки и фестивали, а также культовую достопримечательность - церковь, спроектированную архитектором Йосипом Плечником.
Проект представляет собой гармоничное сочетание истории и современной городской жизни. Реконструкцию планируется завершить к 2026 году.
Планировка квартиры включает в себя просторную гостиную с кухонным уголком и обеденной зоной, ванную комнату и туалет. Перед квартирой разбит палисадник, в котором приятно отдыхать. В квартире есть подвальное помещение и возможность выбрать более совершенное оборудование, такое как кухня на заказ или встроенные элементы хранения.
Резиденция расположена в самом сердце пражского района Винограды, всего в нескольких шагах от площади Иржиго з Подебрад, одного из самых востребованных мест в Праге. Окрестности района славятся своей атмосферой - здесь вы найдете известные кафе, рестораны, фермерские рынки и фестивали, а также культовую достопримечательность - церковь, спроектированную архитектором Йосипом Плечником.
Проект представляет собой гармоничное сочетание истории и современной городской жизни. Реконструкцию планируется завершить к 2026 году.
Характеристики недвижимости
-
Тип предложения
Продажа
-
Тип недвижимости
Квартиры
-
Размер квартиры
1+1
-
Тип здания
Кирпичный
-
Полезная площадь
42 m²
-
Цена продажи
480607 EUR
Запросить экскурсию
Выберите время
Обзорная таблица
-
Номер ссылки
01816
-
Размер квартиры
1+1
-
Полезная площадь
42 m²
-
Номер этажа
1. NP
-
Лифт
Нет
-
PENB
G - Mimořádně nehospodárná
Расположение на карте




